V&B, Vins et Bières

Avec Luana Jacq, Margaux Legal, Marie Prigent
Compétences Composition, Mise en page, UX, Identité
V&B est un concept de cave et bar situé sur les bords de ville. Par
groupe de quatre (Graphisme et Espace), nous avons créé une nouvelle
identité spatiale et visuelle pour l’enseigne, en nous basant sur
l’expérience client.
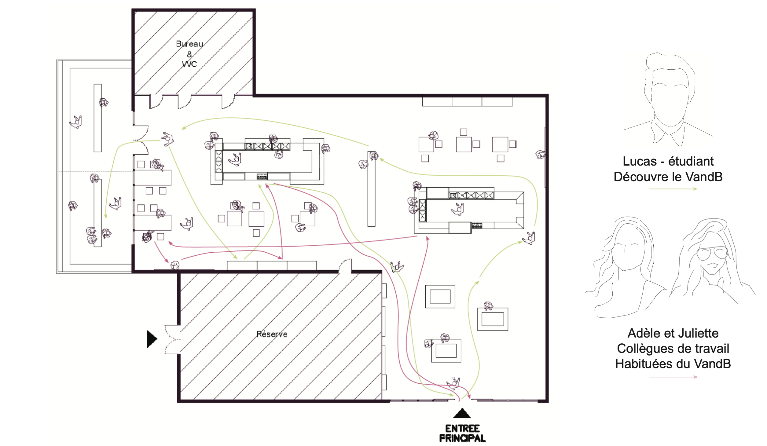
Dans ce bar, il y a quatre stands proposant différents alcools s’accordant aux poissons, aux viandes, aux légumes, aux fromages. Chaque stand suggèreune sélection d’amuse-bouche correspondant aux meilleurs accompagnements, pour encourager les afterworks.
Le placement des stands encourage le self-service afin que les utilisateurs soient autonome dans leur consommation, tout en étant conseillés par les serveurs présents au centre de chaque pôle.
Nous proposons une nouvelle expérience de marché où la convivialité et les découvertes dominent.
Dans ce bar, il y a quatre stands proposant différents alcools s’accordant aux poissons, aux viandes, aux légumes, aux fromages. Chaque stand suggèreune sélection d’amuse-bouche correspondant aux meilleurs accompagnements, pour encourager les afterworks.
Le placement des stands encourage le self-service afin que les utilisateurs soient autonome dans leur consommation, tout en étant conseillés par les serveurs présents au centre de chaque pôle.
Nous proposons une nouvelle expérience de marché où la convivialité et les découvertes dominent.
01 plan, zoning
02 plan des stands, élévations
03 plan de circulations, personas
04 facade
05 espace le marché
06 espace le marché
07 espace le marché
08 espace le marché
09 espace le marché
10 espace le marché
11 espace le marché
12 espace le marché
13 espace le marché
14 chartre graphique
15 matériaux et éclairages